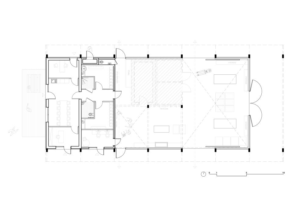
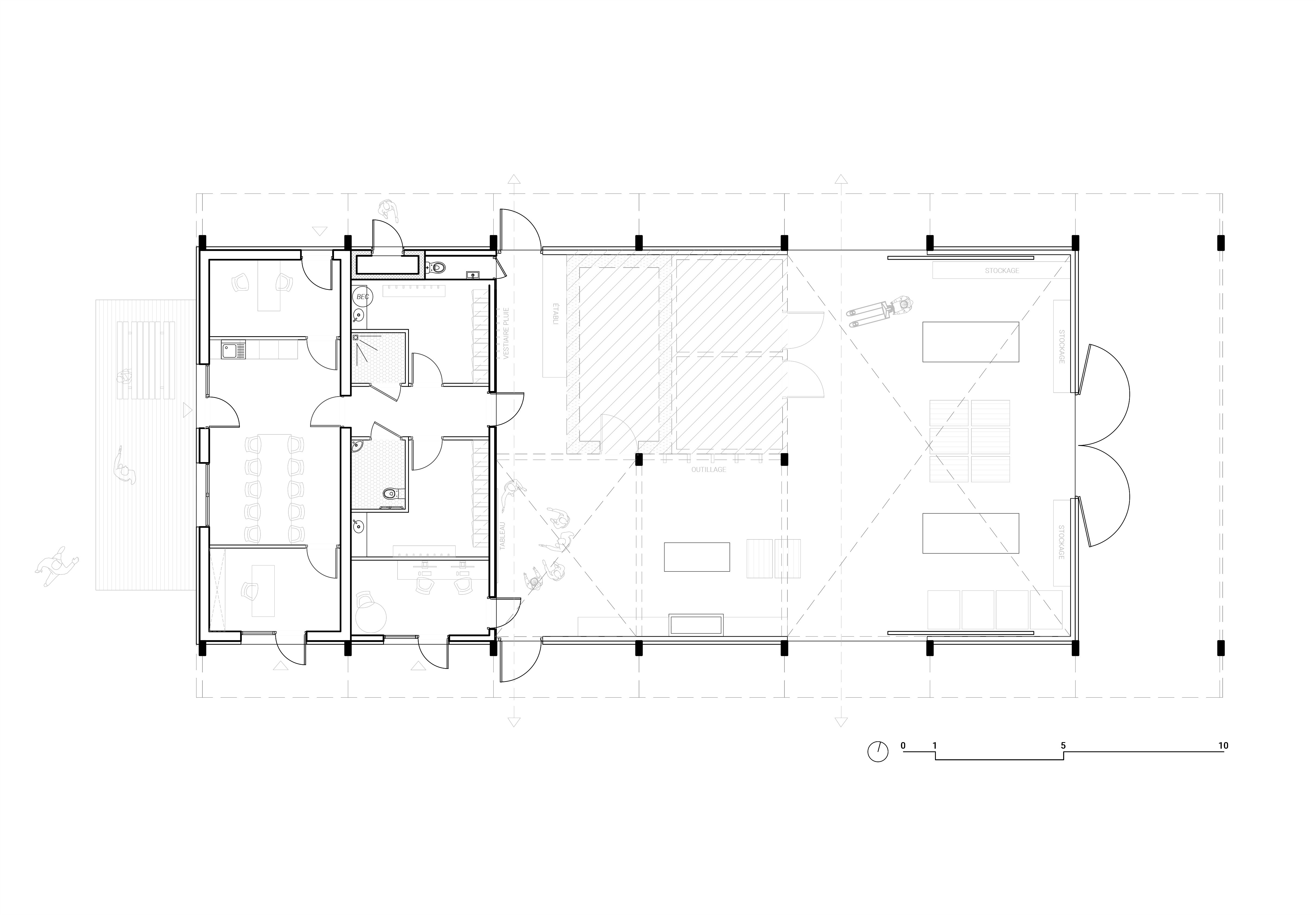
Bâtiment de maraîchage

création d'un atelier à vocation sociale

Emplacement : Malansac (56)
MOA : Questembert Communauté MOE : EEUN Architecture, BECOME 56, ABI, EBSI.
Mission : Complète
Statut : Études en cours
Surface : 400 m²
Coût : 470 000 € HT

Au cœur des terres cultivées, le projet accompagne une activité de maraîchage support d’insertion professionnelle. Les anciens hangars, devenus inadaptés, laissent place à une halle agricole simple et protectrice, offrant de meilleures conditions de travail et d’accueil. Sous une grande toiture prennent place deux volumes autonomes : les locaux sociaux et les chambres froides. Deux traversées — piétonne et agricole — organisent les circulations et relient les espaces de production. Conçu avec des matériaux biosourcés et intégrant une part de réemploi, le bâtiment est naturellement ventilé par un faîtage surélevé, tandis que de larges débords de toiture abritent les accès et protègent du soleil. Simple et robuste, l’architecture accompagne le travail de la terre et offre un cadre digne et accueillant à celles et ceux qui y travaillent.