Atelier

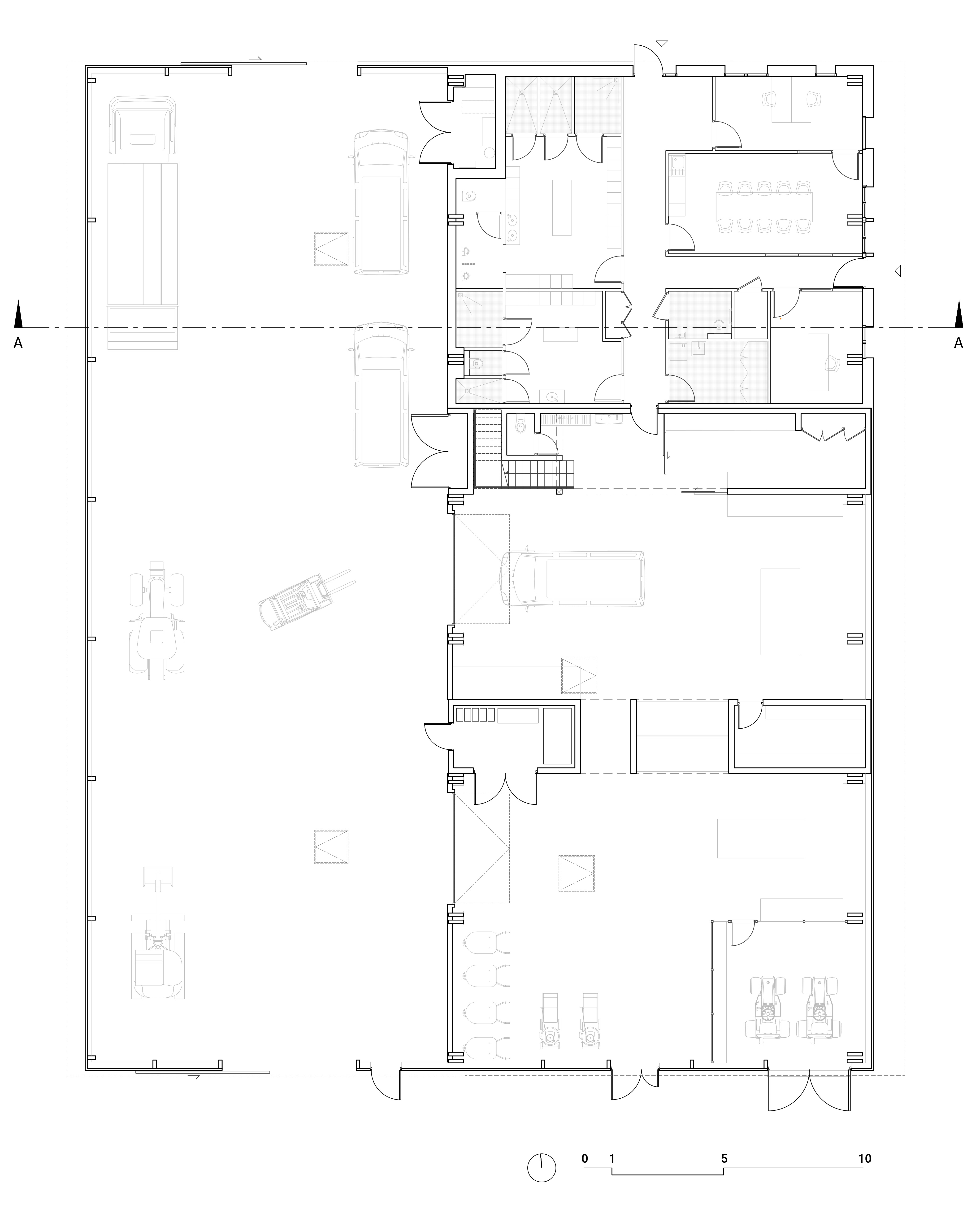
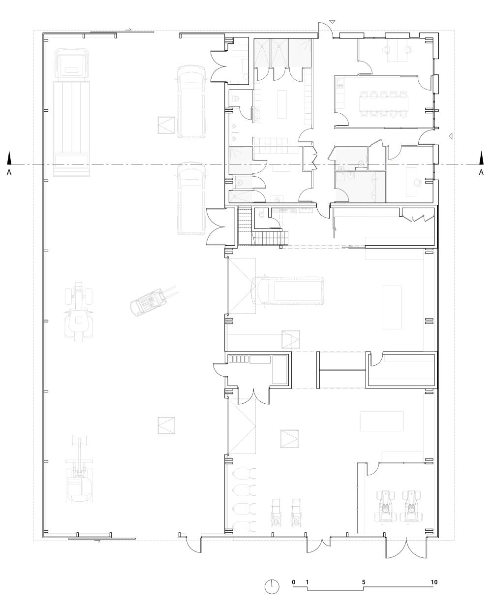
construction d'un centre technique municipal

Emplacement : Merlevenez (56)
MOA : Mairie de Merlevenez
MOE : EEUN Architecture, BECOME 56, ABI, 107 ECO.
Mission : Complète
Statut : Études en cours
Surface : 1121 m²
Coût : 1 550 000 € HT

Au cœur de la zone artisanale de Merlevenez, le nouveau Centre Technique Municipal affirme une ambition claire : offrir aux agents un bâtiment de qualité, fonctionnel, chaleureux et durable. Son écriture sobre met en valeur une structure et un bardage bois qui confèrent au lieu une identité forte et une présence qualitative. Les vestiaire et bureaux, isolés en matériaux biosourcés, bénéficient d’une lumière naturelle généreuse et d’un confort thermique et acoustique soigné, améliorant concrètement les conditions de travail. Rationnel dans son organisation et optimisé dans ses surfaces, le projet associe exigence architecturale et maîtrise économique. Un équipement robuste et pérenne, conçu pour accompagner durablement les services techniques municipaux.